2020-01-09 13:42
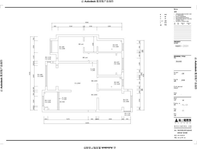
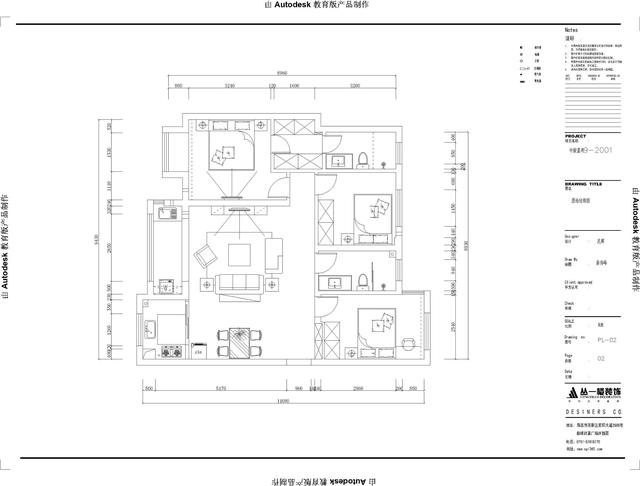
来源:点击:27119楼盘名称:中骏蓝湾9-200X 更多装修效果图尽在装修乐http://www.zxl.com/
造价:7万
设计说明:
整个房子设计以实用,方便,简洁,明亮,天花造型方面主要起到拉升客餐厅开阔性,房主本身善于经营生活,对于房屋的开阔的优点自是加以放大延伸,给予引入自然的明亮与清新。


所展示工地为正在施工的工地。
以上,就是装修乐小编给大家带来的360全景效果图 看完中骏蓝湾这套360度全景效果图,才知道什么是真正的装修!全部内容,希望对大家有所帮助!
热门文章
装修公司 更多>>
宝鸡市金铭饰家装饰工程有限公司
2021-07-21
宝鸡市壹凡装饰工程有限公司
2021-07-19
汉中罗兰蒂美装设计工程有限公司
2021-07-19
汉中吉隆装修装饰有限公司
2021-07-19
汉中市九天实业有限公司
2021-07-19
最新文章 更多>>
凛冬之美丨莫干山科技木与自然共舞 诠释艺术之美
2023-11-08
什么牌子的花洒好用且质量好?双十一好物清单都在这里!
2023-11-08
装修旺季别错过,加盟可耐美就要趁现在
2023-11-08
共启新程,巡回发布·杭州站 | 以用户为原点,帅康0烟感集成烹饪中心构筑健康新厨房友好体验
2023-11-08
卧室适合什么风水摆件 卧室风水摆件放哪里比较好呢
2023-11-07
省钱 · 省时 · 省心
今日仅剩100个免费名额
热门标签更多>>
免费报价
免费设计
*声明 :装修乐为您提供专业、透明、准确的装修报价,该项服务绝不产生任何费用,您的隐私将被严格保密!
稍后装修顾问将来电,免费为您提供装修咨询服务
如有疑问,可扫码添加客服微信咨询